Khung xương vách thạch cao 2 mặt là yếu tố then chốt quyết định độ bền, tính thẩm mỹ và hiệu quả sử dụng của toàn bộ hệ vách. Một lựa chọn đúng đắn không chỉ giúp công trình đẹp hơn mà còn tiết kiệm chi phí bảo trì về lâu dài.
1. Tổng quan về vách thạch cao 2 mặt
Trong xu hướng xây dựng và hoàn thiện nội thất hiện nay, vách thạch cao 2 mặt đang trở thành lựa chọn phổ biến nhờ tính linh hoạt, thẩm mỹ cao và khả năng cách âm, cách nhiệt hiệu quả. Tuy nhiên, để tạo nên một hệ vách bền vững, yếu tố quan trọng nhất chính là khung xương – phần “cốt lõi” chịu lực, định hình và đảm bảo độ ổn định cho toàn bộ bề mặt thạch cao.
Khung xương vách thạch cao 2 mặt không chỉ đóng vai trò là giá đỡ mà còn quyết định đến tuổi thọ, độ phẳng và khả năng chống nứt, chống cong vênh của tường. Chính vì vậy, việc lựa chọn loại khung xương chất lượng, đạt tiêu chuẩn kỹ thuật là vô cùng cần thiết.

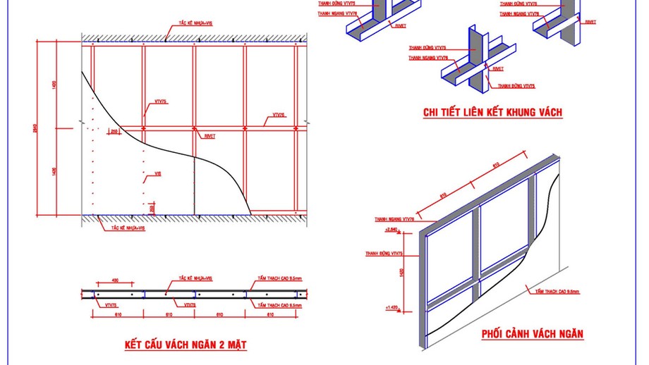
2. Cấu tạo của khung xương vách thạch cao 2 mặt
Một hệ vách thạch cao 2 mặt hoàn chỉnh thường bao gồm:
- Khung xương chính (xương U và xương C): là bộ phận chịu lực, định hình chiều cao và độ phẳng của vách.
- Thanh U: được lắp ở phần sàn và trần, dùng để cố định vị trí của các thanh C.
- Thanh C: được lắp dựng dọc, ghép nối giữa hai thanh U, là khung chịu lực chính.
- Tấm thạch cao: được bắt vít vào khung xương, tạo nên hai mặt tường phẳng mịn.
- Phụ kiện liên kết: gồm vít, ke chống rung, băng keo và các phụ kiện hoàn thiện khác.
Sự kết hợp đồng bộ giữa thanh U, C và phụ kiện tạo nên một hệ khung chắc chắn, ổn định và dễ dàng lắp đặt.

3. Tiêu chuẩn của khung xương vách thạch cao chất lượng
Một hệ khung xương vách thạch cao đạt chuẩn cần đảm bảo các tiêu chí sau:
- Chất liệu cao cấp:
- Làm từ thép mạ kẽm chống gỉ, có độ dày từ 0.45 – 0.55mm.
- Lớp mạ kẽm ≥ 80g/m² giúp chống oxy hóa, đảm bảo tuổi thọ cao.
- Kích thước tiêu chuẩn:
- Thanh U: rộng 32mm, cao 25mm, chiều dài 3m.
- Thanh C: rộng 51mm, cao 35mm, chiều dài 3m.
- Các kích thước này được thiết kế đồng bộ, giúp việc lắp đặt chính xác và nhanh chóng.
- Khả năng chịu lực tốt:
- Được thiết kế để chịu được tải trọng của tấm thạch cao 2 mặt.
- Giữ vững kết cấu, không bị biến dạng dù sử dụng lâu dài.
- Độ phẳng cao:
- Bề mặt khung xương mịn, đều, giúp tấm thạch cao bám chặt, hạn chế nứt mối nối.
- Tính tương thích cao:
- Dễ kết hợp với các loại tấm thạch cao tiêu chuẩn như Vĩnh Tường, Gyproc, DuraFlex,…

4. Ưu điểm của khung xương vách thạch cao 2 mặt
Khi lựa chọn hệ khung xương thạch cao chất lượng, người dùng sẽ nhận được nhiều lợi ích vượt trội:
- Thi công nhanh chóng:
- Cấu trúc lắp ghép đơn giản, tiết kiệm thời gian và nhân công.
- Trọng lượng nhẹ:
- Giảm tải cho công trình so với tường gạch truyền thống, đặc biệt phù hợp cho nhà cao tầng, văn phòng, showroom,…
- Cách âm – cách nhiệt tốt:
- Khoảng trống giữa hai lớp thạch cao có thể chèn bông thủy tinh hoặc xốp EPS để tăng khả năng cách âm.
- Thẩm mỹ cao:
- Bề mặt phẳng mịn, dễ dàng sơn phủ, dán giấy hoặc ốp trang trí.
- Dễ dàng bảo trì:
- Có thể tháo lắp từng tấm thạch cao khi cần sửa chữa mà không ảnh hưởng đến toàn bộ vách.

***Xem thêm: So sánh bột thạch cao và bột thuỷ tinh
5. Ứng dụng thực tế của vách thạch cao 2 mặt
Nhờ tính linh hoạt và hiệu năng cao, khung xương vách thạch cao 2 mặt được ứng dụng rộng rãi trong nhiều không gian:
- Nhà ở: chia không gian phòng ngủ, phòng làm việc, phòng thờ,…
- Văn phòng, công sở: tạo phòng họp, phòng ban riêng biệt với khả năng cách âm tốt.
- Trung tâm thương mại, showroom: giúp bố trí không gian khoa học, dễ thay đổi theo nhu cầu.
- Khách sạn, nhà hàng: tạo vách ngăn nhẹ, tiết kiệm diện tích và tăng tính thẩm mỹ.
6. Kinh nghiệm chọn khung xương vách thạch cao chất lượng
Khi lựa chọn khung xương cho công trình, bạn nên lưu ý:
- Chọn sản phẩm chính hãng từ các thương hiệu uy tín như Vĩnh Tường, U-Panel, Knauf,…
- Kiểm tra lớp mạ kẽm và độ dày thép để đảm bảo khả năng chống gỉ và chịu lực.
- Xem tem nhãn, chứng chỉ chất lượng (CO, CQ) trước khi mua.
- Ưu tiên đơn vị cung cấp trọn gói (vật tư + thi công) để được bảo hành và đảm bảo kỹ thuật.
7. Vietnamarch – Đơn vị thi công khung xương vách thạch cao hàng đầu
Với hơn 20 năm kinh nghiệm trong lĩnh vực thiết kế – thi công trần vách thạch cao, Vietnamarch tự hào là đơn vị tiên phong mang đến các giải pháp vách thạch cao 2 mặt chất lượng cao – chuẩn kỹ thuật – chuẩn thẩm mỹ.
Vietnamarch cam kết:
- Cung cấp khung xương chính hãng Vĩnh Tường, U-Panel, tiêu chuẩn ASTM.
- Thi công đúng kỹ thuật, đúng tiến độ, bảo hành dài hạn.
- Đội ngũ kỹ sư và thợ lành nghề, am hiểu kết cấu và thẩm mỹ nội thất.
- Tư vấn thiết kế tối ưu công năng – tiết kiệm chi phí cho khách hàng.
Vspace Gypsum – Đơn vị cung ứng bột thạch cao uy tín: 0904.183.097

Có thể bạn quan tâm
Bột bả thạch cao Gypow có gì nổi trội hơn những loại khác?
Trong các hạng mục hoàn thiện nội thất hiện đại, bột bả thạch cao đóng
Cách chọn mua bột bả thạch cao Dulux chất lượng
Trong quá trình hoàn thiện nội thất, bột bả thạch cao là lớp nền quan
Cách điều chỉnh độ pH của đất bằng bột thạch cao
Trong nông nghiệp hiện đại, việc kiểm soát độ pH của đất đóng vai trò
Mặt nạ thạch cao có công dụng gì trong làm đẹp?
Trong những năm gần đây, mặt nạ thạch cao trở thành một trong những phương
Hướng dẫn sử dụng bột thạch cao khử chua cho đất
Trong sản xuất nông nghiệp, đất chua là một trong những vấn đề phổ biến
Bột thạch cao trong xây dựng bao gồm những loại nào?
Bột thạch cao trong xây dựng là vật liệu được sử dụng rất phổ biến
Bột thạch cao siêu mịn là gì? Đặc điểm, ứng dụng và cách lựa chọn chất lượng
Bột thạch cao siêu mịn là loại vật liệu được sử dụng phổ biến trong
Bột thạch cao chịu nhiệt mua ở đâu uy tín?
Bột thạch cao chịu nhiệt là loại vật liệu được sử dụng phổ biến trong